Commercial
Design & Build
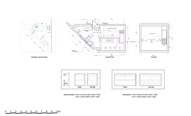
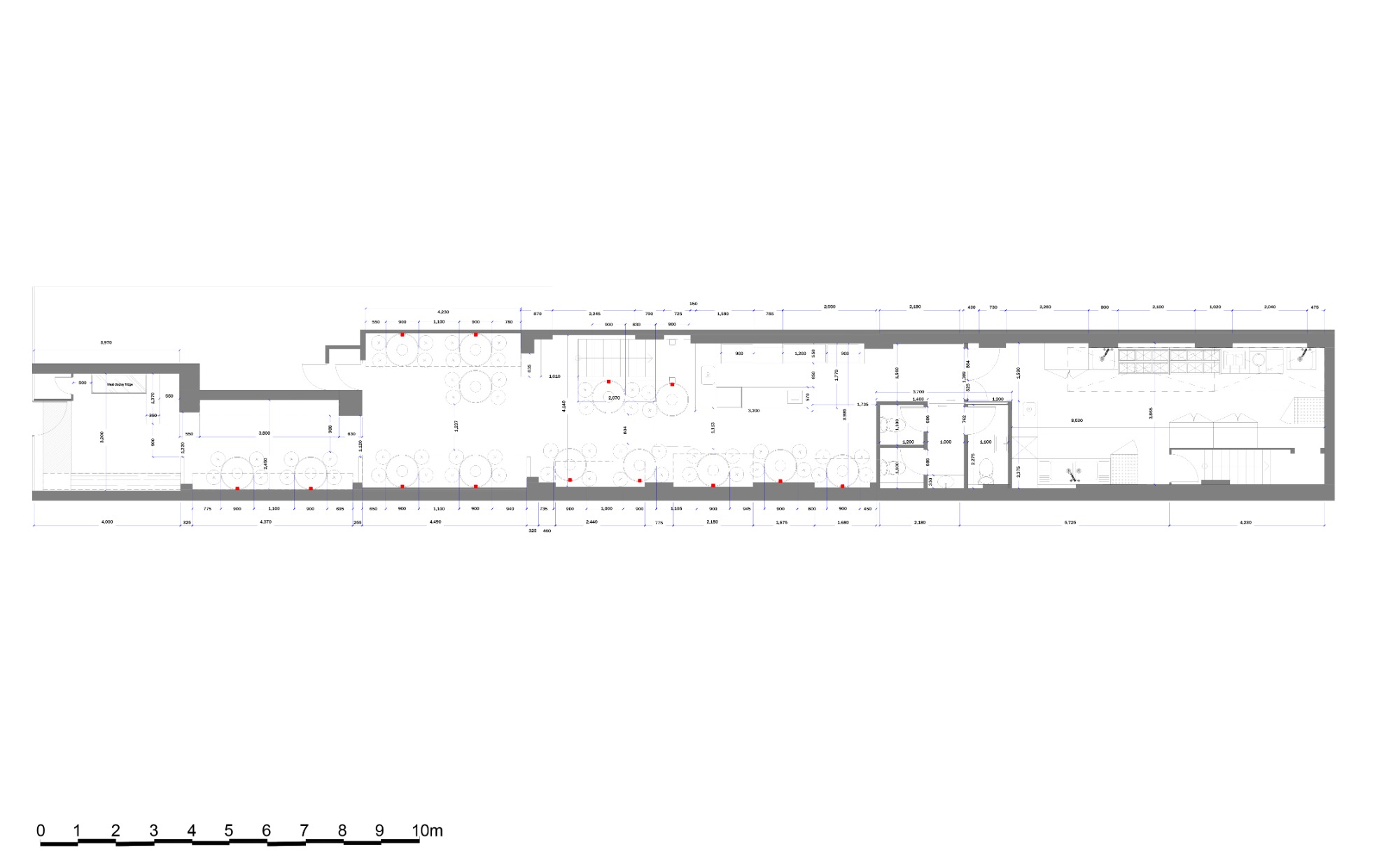
We specialise in commercial design and build projects, delivering restaurants, cafés, retail units, and interior fit-outs across London.
With extensive on-site experience, we manage the full process from survey and design through to construction and handover, ensuring programmes, costs, and quality are properly controlled.
Commercial projects often involve tight timelines, landlord requirements, and operational constraints. Our role is to coordinate these factors early and deliver spaces that are ready to open on schedule.
Consistently delivering operational-ready spaces with clear programme and cost control.



























































