Planning and Building Regulations Services
We support commercial and residential projects with planning permission applications, advertisement consent (signage), and Building Regulations submissions, including council liaison and revisions.
Planning Permission (Residential & Commercial)
Advertisement Consent (Signage / Shopfronts)
Building Regulations (Full Plans / where required)
Liaison & Revisions (Council / Building Cont
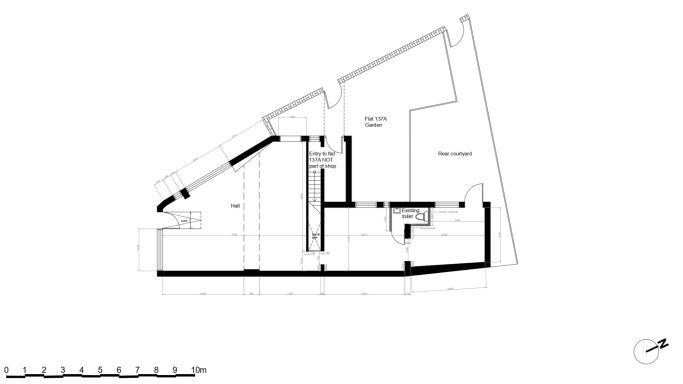
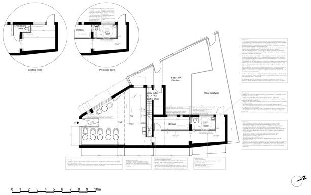
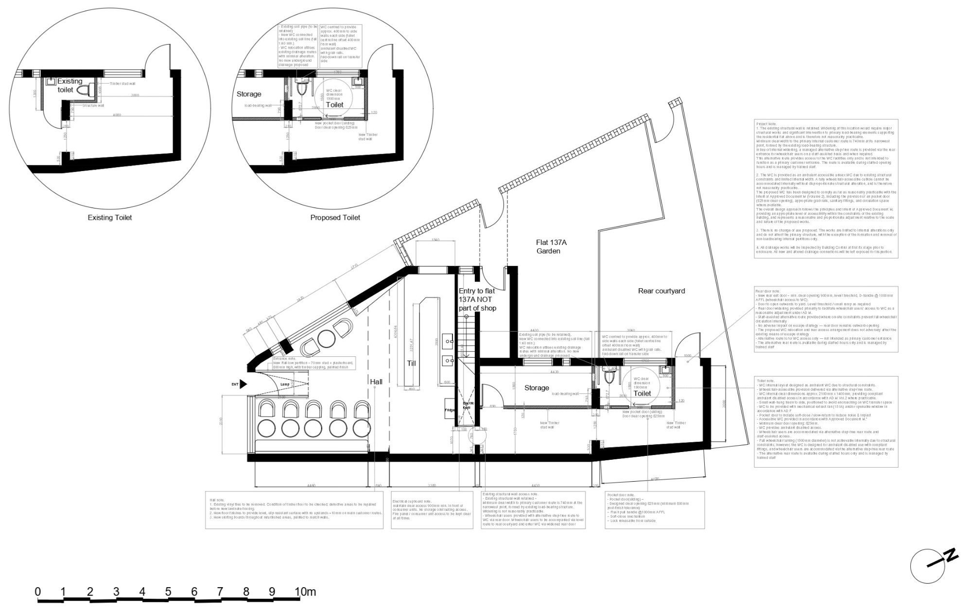
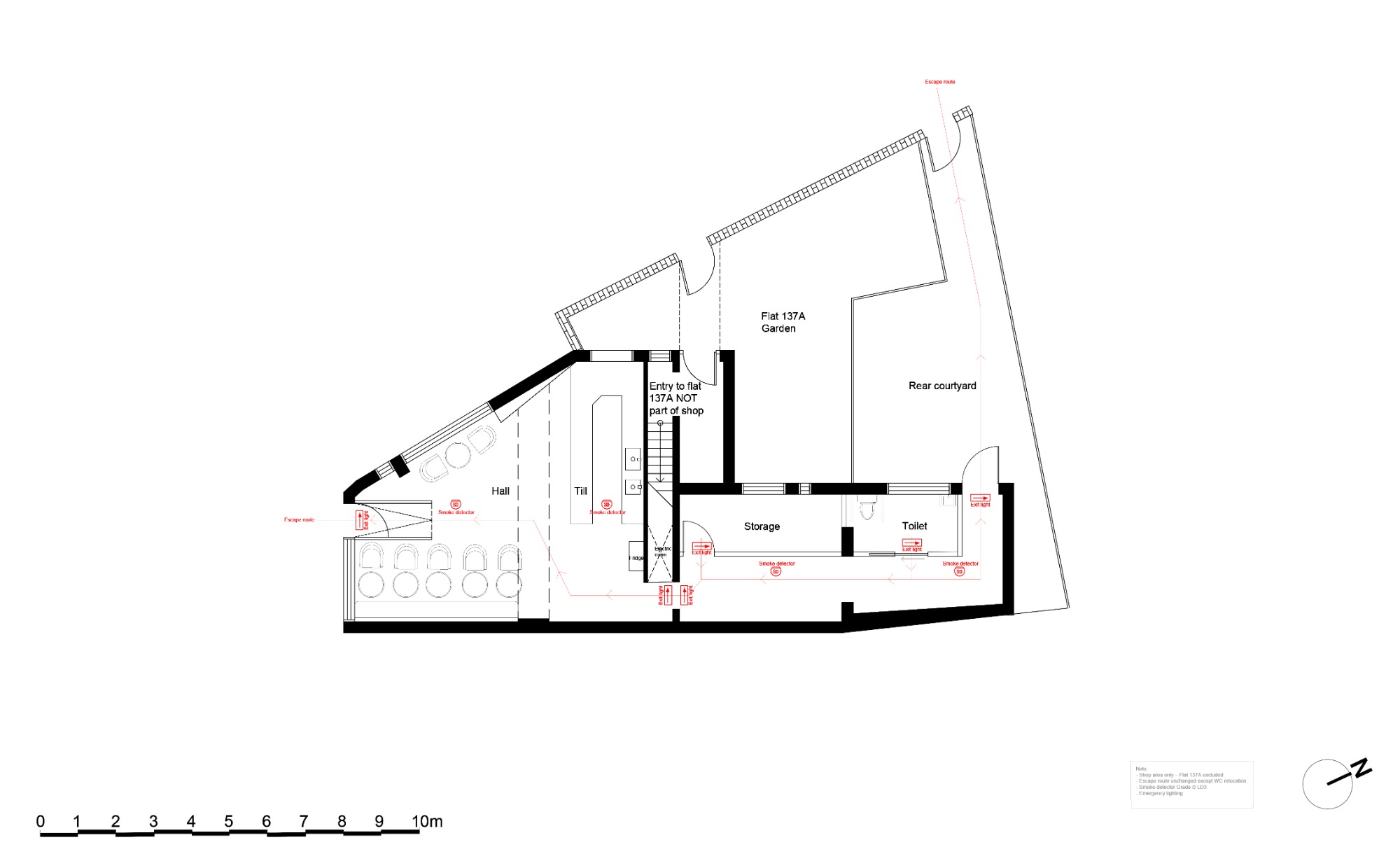
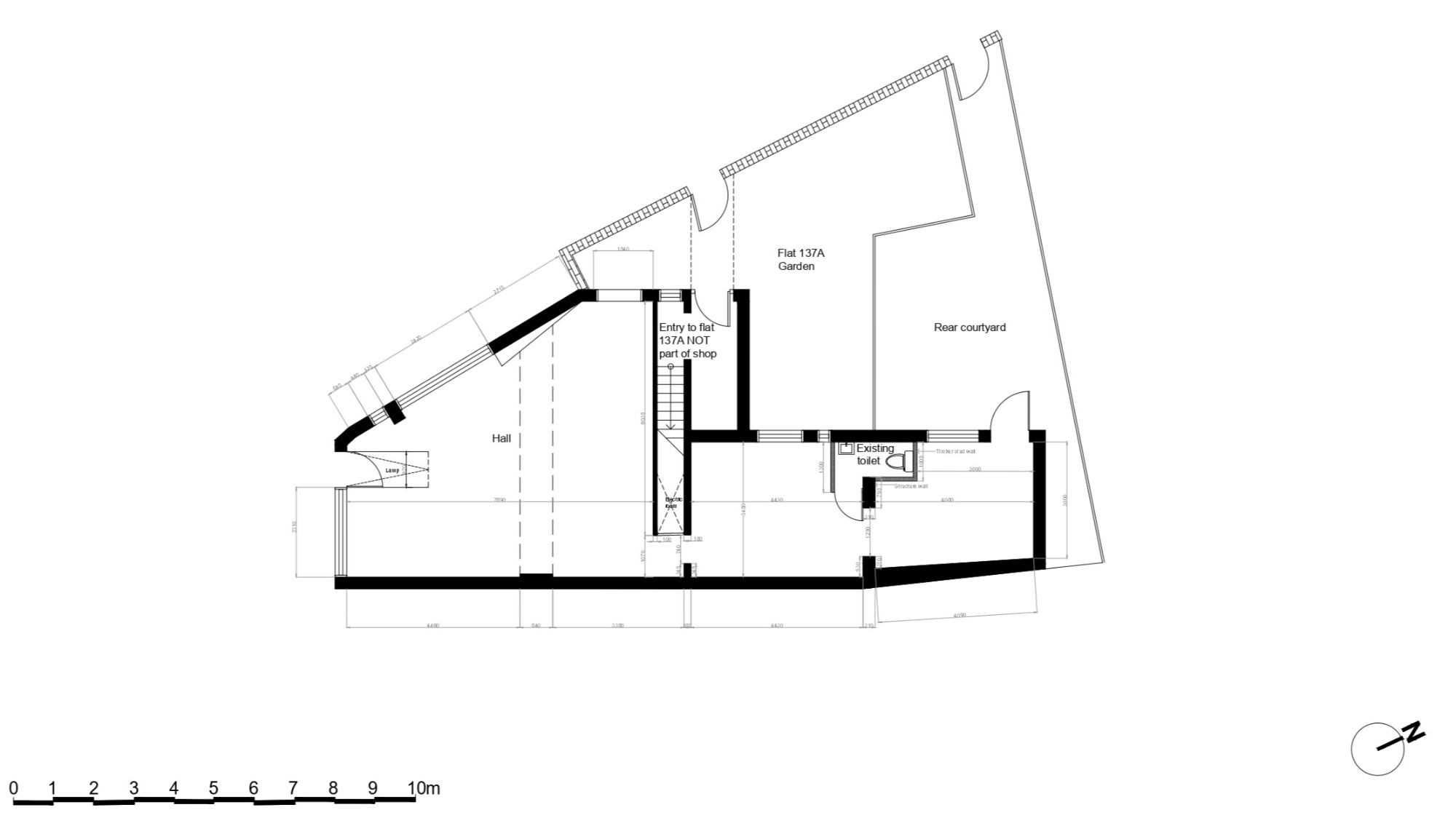
Cafe Interior Design - Building Control Application
Kingston Council
Project type: Building Control
Scope: Cafe interior design Design / Drawings only
Sector: Commercial
Location: Kingston Road, New Malden
Council: Kingston upon Thames London Borough Council
Outcome: completed - January 2026
Full plans building control application, including interior layout support
Restaurant Signage, Fleet Street - Control of Advertisement Planning Application
City of London
Project type: Advertisement Consent
Scope: Restaurant Signage Design / Drawings
Sector: Commercial
Location: Fleet Street, EC4Y
Council: City of London
Outcome: In progress - December 2025
Control of Advertisement Planning Application (City of London), including Signage layout support
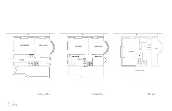
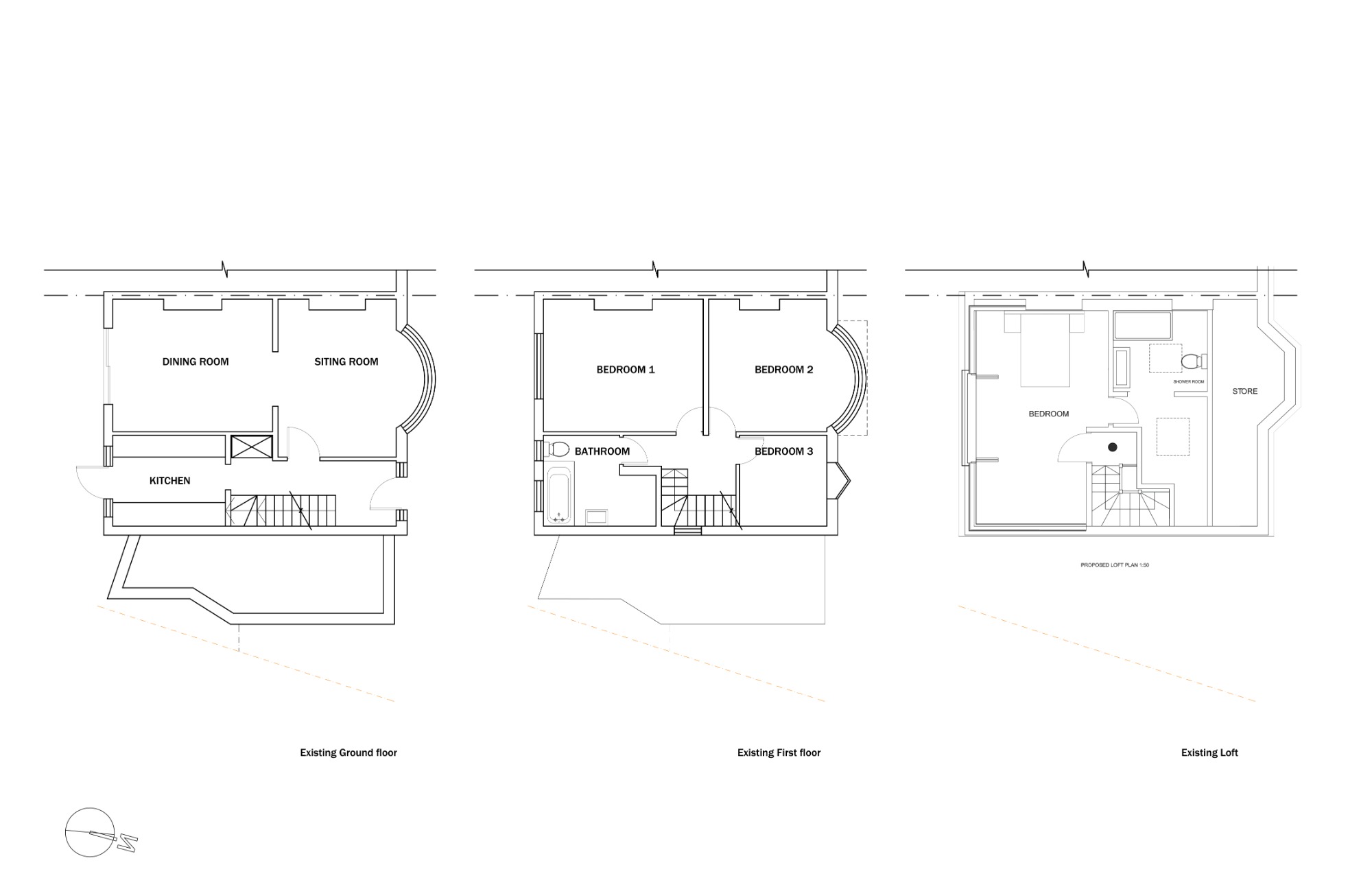
A Single Side Extension Project - Planning Permission Application
Kingston Council
Project type: Planning permission
Scope: A Single Side Extension Design / Drawings
Sector: Residential
Location: Greenlaw Gardens, New Malden
Council: Kingston upon Thames London Borough Council
Outcome: Completed, November 2024
Side Extension Planning Permission Application support, including Site plan, Block plan, Ground floor plan, Elevation and Section drawings
Two-story Side Extension - Planning Permission Application
Merton Council
Project type: Planning permission
Scope: Two-story Side Extension Design / Drawings
Sector: Residential
Location: Heath Drive, Raynes Park
Council: Merton Council
Outcome: Completed, December 2024
Side Extension Planning Permission Application support, including Site plan, Block plan, Ground floor plan, Elevation and Section drawings






















